The Light House Office

Incredible office in an amazing location (with free under cover parking for staff and clients) looking for new tenants.

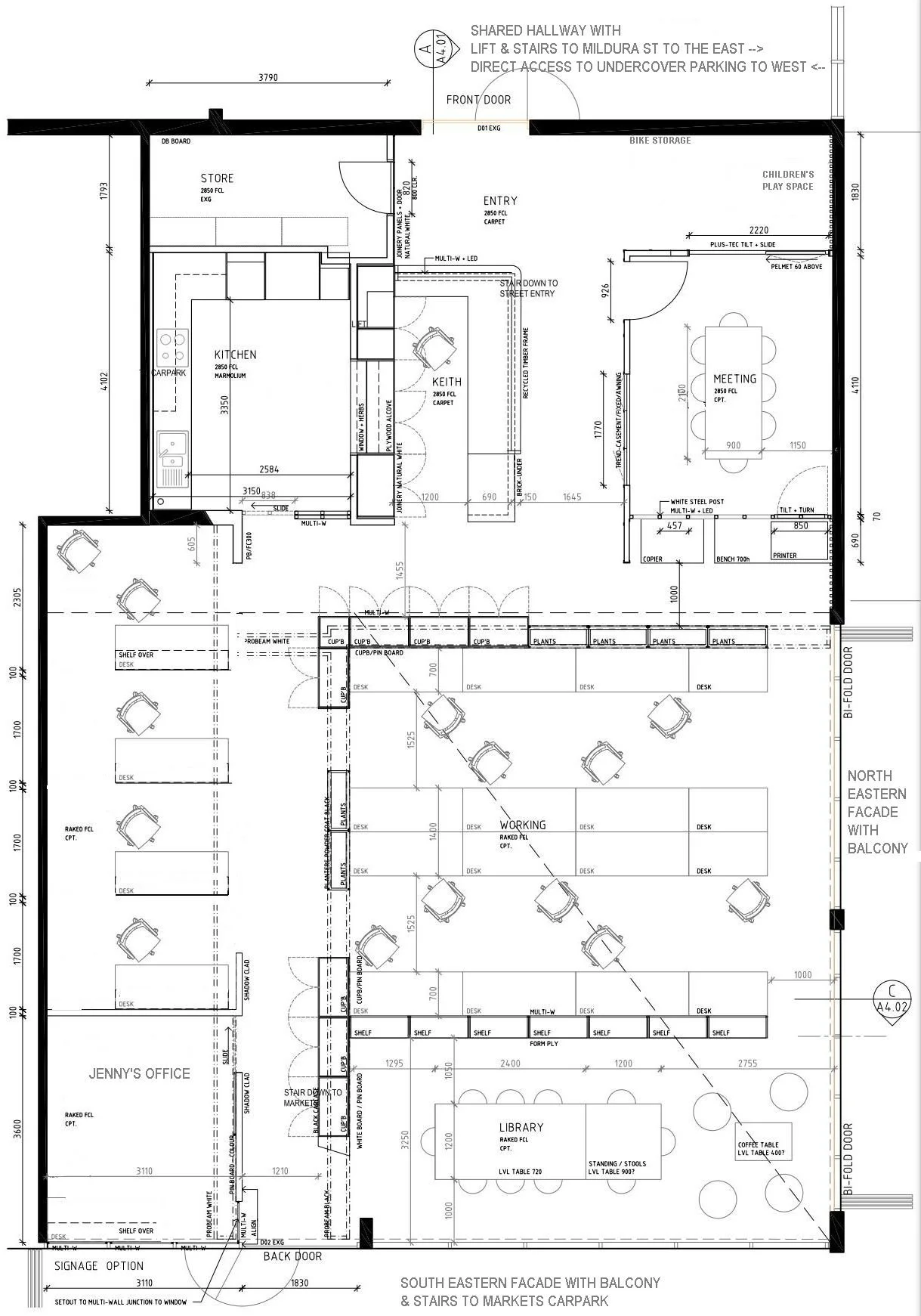
We designed and crafted this 215 square metre office fitout in August 2014 with sustainable “circular” principles strongly in mind. Twelve years later, the design and construction industries are much more familiar with the concept of the circular economy and the importance of reducing waste. Materials are very valuable — most valuable in terms of our environment and climate (ie. the health of planet and people).

Sadly, most commercial leases in Australia require tenants to remove fitouts at the end of their tenancy. My lease ends at the end of January.

While it is not my responsibility to find a new tenant, I would LOVE your help to spread the word about this brilliant space. Fitouts are hugely expensive in terms of $ these days before even considering the alarming carbon cost. This is my last ditch effort to prevent this material (and this excellent office design) from going to waste.

It has room for 18 individual work stations (we had 17 people working here 2023/24), two meeting spaces, loads of storage including a big library space and separate storage room, a full kitchen, a break out lunch/chill corner, space for bikes, a kids corner, lift access, ceiling fans, reverse cycle air conditioning that keeps it super comfy in the heights of summer and depths of winter, EV charging, lovely easterly orientation and a balcony wrapping around two sides (SE to the markets and NE to Majura St and the hills beyond). It even has views to Black Mountain and Mt Ainslie, not to mention the incredible selection of food downstairs every Thursday and Friday!

In short it is a GEM of a space and it was a brilliant spot to run a small business from — so many good times and great memories. If you can think of anyone who it might suit, please let them know.

PS we even have a beautiful modular mural design — Forest Light — by the hugely talented Sonia van de Haar of Lymesmith that we were going to implement gradually (1200 x 2400 panel by panel) across the back white wall of the office. I will happily help with the painting if someone takes this on — I was soooo looking forward to it!

If you are interested

Feel free to contact me at contact@lighthouseteam.com.au to talk about the fitout (lining up a time to have a look) and what its been like to work here. If you would like to talk $ and lease details then you need to speak to the very friendly Jay Andrews, Centre Manager here at the markets: e. info@fyshwickmarkets.com.au p. 0494189921