Light House Fitout & Furniture for Sale

BEFORE

The shell that we started with in 2014. Technically, when the lease ends the space is meant to be returned to this.

As the owner of a business that has sustainability at its core I find myself in a tricky situation. At Light House we believe investing in good design and quality construction delivers functional, beautiful, long lasting, low carbon, climate resilient outcomes.

Back in 2014 we began leasing a 215 square metre space at the Fyshwick Markets. Previously it had been a rug shop and before that the dining area of a restaurant! The existing fitout was very basic and did not suit a business like ours but we could see the enormous potential in this exciting location with its great amenity, light and views.

Our new fitout was designed and built by our award-winning architecture and construction teams in August and September of 2014 (back then we were Jigsaw Housing). Sustainability, or circularity, was a priority for us, as evidenced by our use of salvaged materials plus quality second hand furniture, and the modular design of the new components that our team and other skilled trades created.

Nearly twelve years later, I am enormously proud of the work we have delivered from this space. This fitout created back in 2014 at a cost of $140,000 has fostered, and enabled, the innovative, collaborative culture that differentiated Light House from other design practices. It has stood the test of time and still looks great today.

Over the last 18 months, following significant, personal health events (stroke and cancer), I have gradually downsized the business from seventeen design and science staff to a team of three while we wrapped up all of our remaining architecture work. It’s just the science crew left now and we don’t need much space because we meet clients in their homes with our testing gear, or online, rather than in a physical office.

What will happen to all of this carefully designed and crafted fitout now?
Hopefully another business will see the benefits of this excellent location and the enormous value (saved money, time, energy and materials) in the existing fitout and offer to purchase it at a greatly discounted price.

To start afresh would be extremely costly and time-consuming. Based on recent industry experience and discussion with industry colleagues, we predict that:
1. the cost would be between $350 and $450k for the materials, fixtures, fittings and the labour of the multiple trades required;
2. even for an experienced builder, coordinating the multiple parties involved in the construction of a space like this would take around four months if all went smoothly.

 

What does the fitout include and why is it so good?

See for yourself below. Almost everything you see in these photos (all taken quite recently) is included. This really is an incredible space and I would love for it to become the new home of another innovative, collaborative business for many years to come (and yes, I would love to visit when I shop at the markets!).

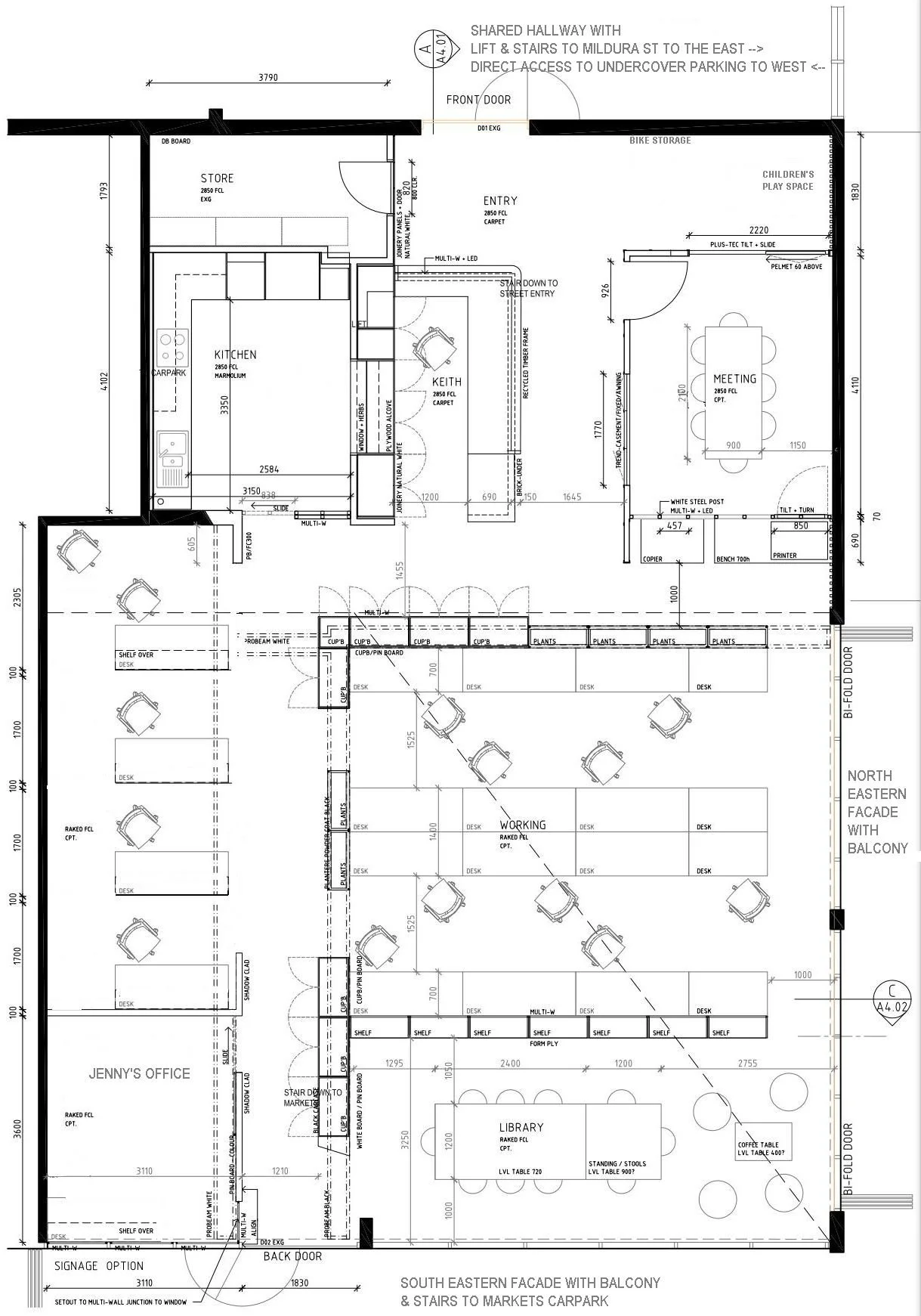
NOTE: There is a floor plan at the end of this blog.

To talk about the lease conditions and rental rates you need to contact the Markets Manager, Jay Andrews, via info@fyshwickmarkets.com.au. If you would like to check out the space and talk about fitout inclusions/exclusions and price please contact me via contact@lighthouseteam.com.au with the subject OFFICE FITOUT.

AFTER

RECEPTION AREA 4165 x 1890
Salvaged timber and red Canberra brick reception desk, three pendant lights and full wall of joinery behind with ply insert and window to kitchen (plants not included)
Desk space for up to two people
See video on Facebook here

*Plants NOT included

ENCLOSED MEETING ROOM 4100 x 3200
Table: architect-designed table with LVL timber top and custom metal legs
L 2205 x W 923 x H 720
Chairs x 8: steel framed chairs with black upholstery
Pelmet lighting with picture hanging rail concealed beneath
Double glazed windows in three walls

*F!NK jug and coolamon platter NOT included

OPEN MEETING ROOM/LIBRARY 4900 x 4250
Custom LVL table: 3600mm total length
lower portion L2395 x W1190 x H720 comfortably fits eight sitting comfortably
upper portion L1200 x W 1190 x H 1100 fits 6 standing has four shelves under
Tall bookcases x 7: black form ply with translucent bronze multiwall backing
H2400 x W950 x D350
Chairs x6: quirky set of steel framed vintage chairs that look great with this table

BLACK STORAGE CUPBOARDS/ROOM DIVIDERS - total footprint 7540 x 500
6 x double cupboards: H2400 x W950 x D500
1 x triple cupboard H2400 x W1440 x D500
1 x single open angled shelves (at entrance to library) H2400 x W400 x D500
*All with adjustable shelves

PLANTER BOXES & CABLE TRAYS
Custom fabricated metals planter boxes x 6: H2400 x W 950 x D350, 3 with metal mesh for climbing plants
Custom fabricated, integrated cable trays: to conceal electrical and data cabling to work stations; >40 metres of double tray running neatly overhead

KITCHEN 3150 x 2580
Including dishwasher, induction cooktop, externally ducted exhaust fan, wall oven, concealable microwave, fridge/freezer, large pull-out pantry + under-bench, over-bench and above-fridge storage
*Coffee machine NOT included

STORAGE ROOM 3790 x 1793
Neatly concealed behind a joinery wall to the right of the entry
Metal shelving units x 3
Server and IT hub

LUNCH CORNER 3250 x 2755
Three comfy vintage chairs reupholstered in quality black fabric and retro glass table
*vintage lime bucket chair &
beautiful bench seat by local design duo Forever Furniture NOT included

DESKS
Various white melamine 1800 x 700/800 adjustable height desks
Mix of electric push button and manual winder
With or without the black form play dividers

Small bookcases x 7: to accompany or divide workstations
black form ply with translucent bronze multiwall backing to match library
H1200 x W700 XD260

Unique architect-designed standing desk - SOLD $3,000
See video on Facebook here.

PRINTER ZONE
Storage cabinet L1800 x W690 x H725
Guillotine
Paper recycling bin
NOTE: Cardboard model of Taglietti’s Paterson House not included
FYI The model was made by Elizabeth Paterson (who grew up in the house) for an exhibition to accompany the Enrico Taglietti Symposium in the Design Canberra Festival of 2018

LIGHTING, HEATING & COOLING
Quality LED lamps and stylish pendants and fittings throughout
Pelmet lighting to the kitchen and enclosed meeting room
Excellent natural lighting to majority of the space due to the easterly oriented glazing (SE to the market carpark, NE to Mildura St and Mt Ainslie)
Winter sun penetrates deep into the office while summer sun is shade by the large eaves over the balconies.
Ceiling fans to main workspace, both meeting rooms and kitchen
Efficient RCAC easily maintains the space at comfortable temperatures during the depths of winter and height of summer

OTHER GOOD STUFF
Hanging storage space for non-ebikes + parking space for ebikes
Kids play corner adjoining meeting room
Lovely salvaged timber battens to the walls near the entry and printer
Funky repurposed carpet tiles. Dog friendly. Great sunsets.

Insulating privacy panels to the full height windows in the corner office
+ insulating film to clerestory windows - see video on Facebook here.

LOCATION LOCATION LOCATION
Terrific location and great amenity.
Peaceful Mon-Wed. Vibrant Thu-Fri.
Great food and beverage options. Great bookshop.
Free undercover parking on same level. Lift and stair access from Mildura Street. Stair access from the market carpark.
Views north to Mt Ainslie and beautiful sunsets west to Black Mountain. It is super convenient and has a great vibe.
Shared bathroom facilities, including accessible bathroom, shower and baby change table just along the hallway.